Проект 2-3-167 «Полпино»
Двухэтажный дом с 3 спальнями и кабинетом
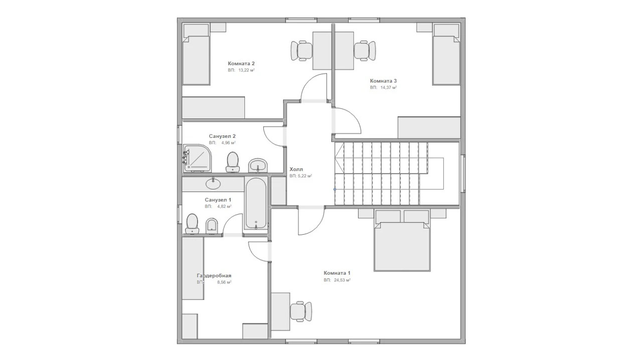
Двухэтажный каркасный дом по проекту Полпино общей площадью 167 м2. В доме предусмотрено 3 спальни, 3 санузла, кабинет, кухня, гостиная, котельная, терраса, кладовая.
Характеристики проекта:
- Каркасный
- Общая площадь - 167 m2
- Количество этажей - Два этажа
- Спальных комнат - 3
- Санузлов - 3
- Терраса - 17 м2
Описание
Двухэтажный каркасный дом по проекту Полпино общей площадью 167 м2. В доме предусмотрено 3 спальни, 3 санузла, кабинет, кухня, гостиная, котельная, терраса, кладовая. Всё что нужно для комфортного проживания для семьи с двумя и более детьми. В мастер спальне имеется гардеробная и собственный санузел. На первом этаже имеется изолированный рабочий кабинет, что очень удобно если работаете на удалёнке. Кухня интегрирована в отдельное пространство, что позволяет при необходимости закрывать её от гостиной с помощью ширмы или раздвижных дверей. Большие панорамные окна делают дом более светлым.
план 2 этажа, проект Полпино

план 1 этажа, проект Полпино
