Проект 1-2-56 «Малфа»
Каркасный дом 7х7 плюс терраса 2м
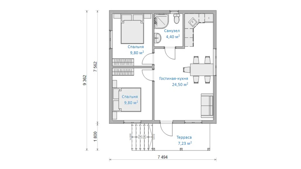
Проект одноэтажного каркасного дома 7х7 + терраса с двумя спальнями общей площадью 56 м2
Характеристики проекта:
- Каркасный
- Общая площадь - 56 m2
- Количество этажей - Один этаж
- Спальных комнат - 2
- Санузлов - 1
- Терраса - 7,23 м2
Описание
Этот проект разработан для тех кому необходим небольшой дом с двумя спальными комнатами. В доме так же имеется просторная гостиная совмещённая с кухней и санузел. На входе имеется уютная терраса. Основные размеры дома 7 на 7 метров плюс терраса 2 м
