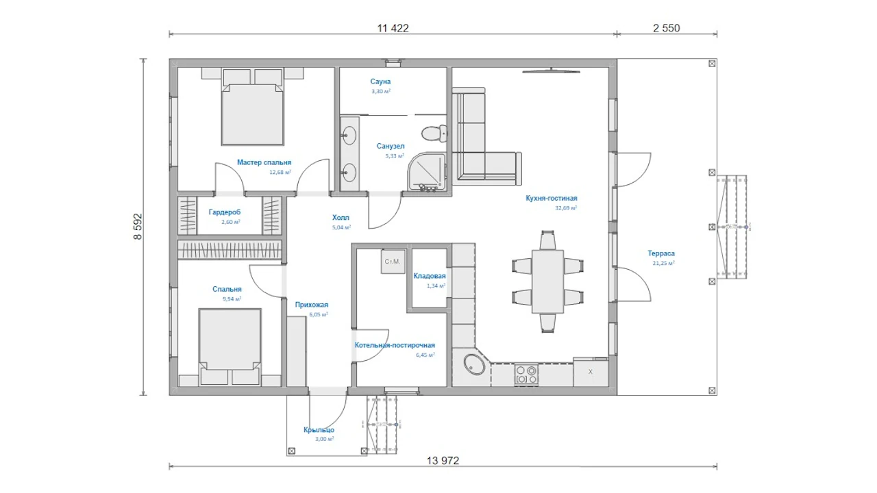
Проект 1-2-109 «Дядьково»
Каркасный дом 109 м2 с сауной террасой 2,5 на 8,5 м
Проект одноэтажного каркасного дома общей площадью 109 м2 с террасой и сауной
Характеристики проекта:
- Каркасный
- Общая площадь - 109 m2
- Количество этажей - Один этаж
- Спальных комнат - 2
- Санузлов - 1
- Терраса - 8,5 х 2,5
